Focolare a legna
• focolare in refrattario bianco o nero
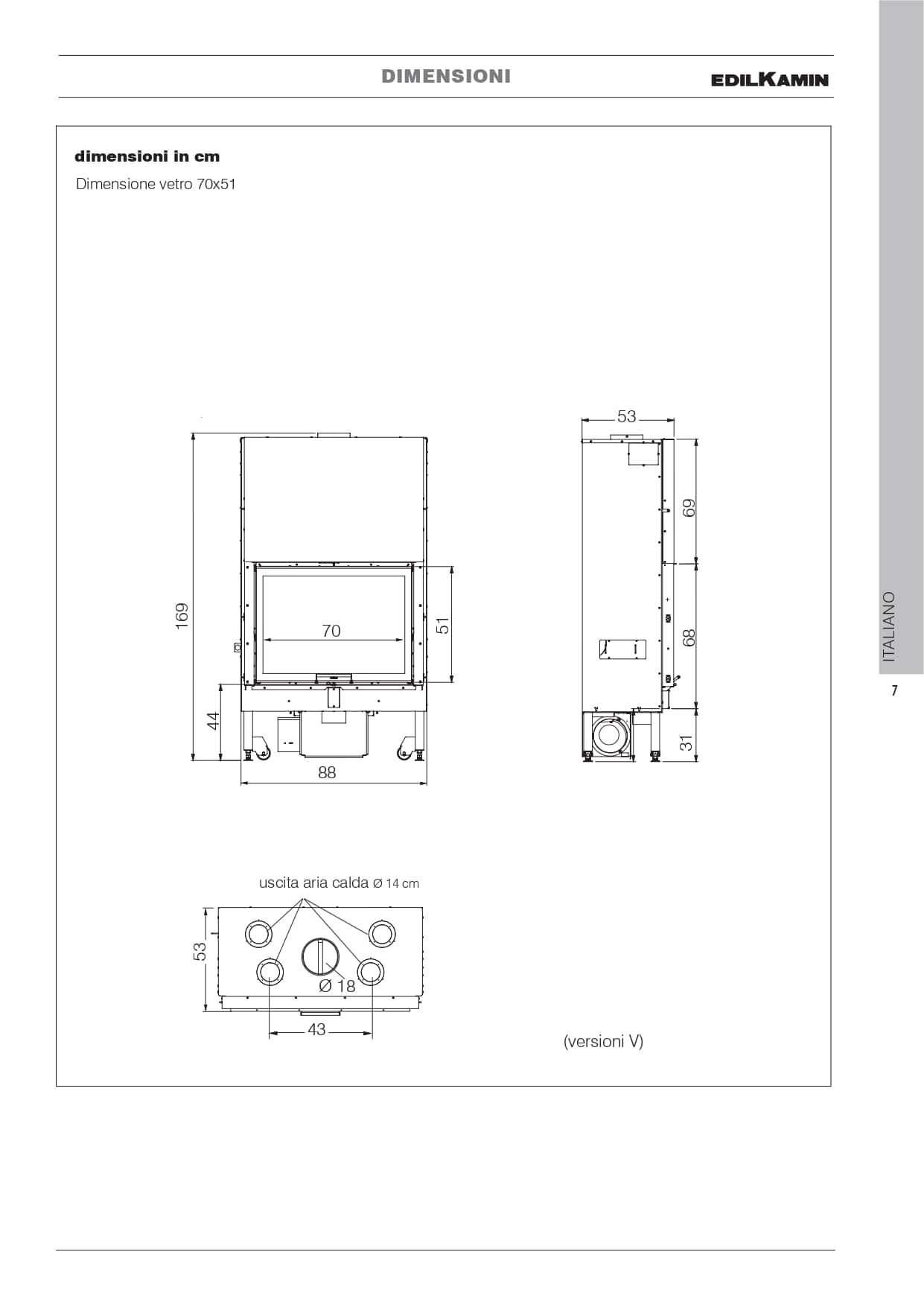
• uscita fumi Ø 18 cm superiore, femmina
• 4 piedi per regolare l’altezza
• 4 ruote per agevolare lo spostamento durante l’installazione
• portellone che si apre a saliscendi e a ribalta per la pulizia del vetro
• aria calda canalizzabile in 4 locali (uscite superiori n°4)
• con leva di regolazione dell’aria di combustione
• post-combustione
• sistema di pulizia vetro
• maniglia asportabile
• versione N (convezione naturale) senza mantello convettivo SCHEDA TECNICA
• versione V (ventilazione forzata) completo di: mantello convettivo per canalizzazione aria calda, kit di ventilazione integrato completo di regolatore elettronico e telecomando
• aria calda canalizzabile fino a 4 locali
![]()
Optional:
• Cornice contorno bocca
• Dima per controcappa
• Kit UNO/bis, DUE/bis, TRE/bis, Kit QUATTRO/bis, CINQUE/bis
Caratteristiche tecniche
| larghezza | 88cm |
|---|---|
| profondità | 53cm |
| altezza | 169cm |
| dimensione del focolare (L x P x H) | 64,5x31x45cm |
| potenza utile | 15kW |
| rendimento | 85% |
| consumo di combustibile (legna) | 3,8kg/h |
| Ø uscita fumi | 18cm |
| peso complessivo | 306/326kg |
| vol. riscaldabile (isol. prev. legge 10/91) | 390m³ |



