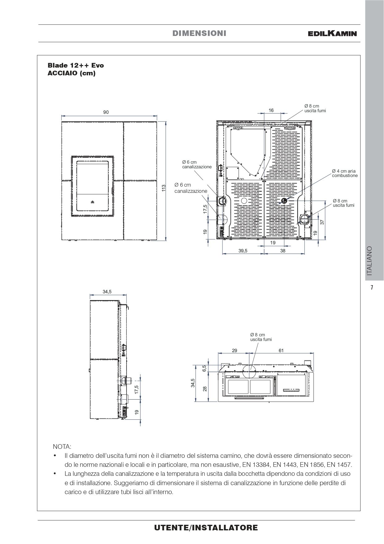
Stufa a pellet canalizzabile con profondità ridotta (cm 34,5).
• focolare in ghisa
• candeletta ceramica
• uscita fumi Ø 8 cm: superiore, femmina; posteriore e laterale sinistra, maschio, (optional)
• 2 uscite per l’aria calda con 3 ventilatori di serie:
• 1 uscita aria calda frontale, gestita tramite radiocomando che funziona da termostato ambiente
• 2 uscite aria calda canalizzabile posteriore Ø 6 cm. Tramite il radiocomando regolazione indipendente del ventilatore canalizzato (termostatizzabile tramite installazione sonda ambiente, optional)
• programmazione giornaliera/settimanale
• funzione EASY TIMER
• funzione RELAX (disattivazione ventilazione)
• Spia riserva pellet
• Radiocomando “Mind remote”
• Sistema The Mind con WI-FI integrato
• Sistema Leonardo
• Fire Control
![]()
OPTIONAL
• Kit airKare
• Kit uscita fumi Ø 8 cm maschio: posteriore e laterale sinistra
• Sonda ambiente NTC per lettura temperatura in canalizzazione
• Abbinabile alle bocchette di canalizzazione SPLIT, BENT, ORIGAMI e SHARP
• kit deviatore aria
Caratteristiche tecniche
| larghezza | 90cm |
|---|---|
| profondità | 34,5cm |
| altezza | 113cm |
| potenza utile | 4,3/12,1kW |
| rendimento | 90,6% |
| consumo di combustibile (pellet) | 1/2,8kg/h |
| capacità serbatoio | 22kg |
| autonomia | 8/22h |
| Ø uscita fumi | 8cm |
| Ø presa aria | 4cm |
| peso complessivo | 175kg |
| vol. riscaldabile (isolamento previsto legge 10/91) | 315m³ |



